Publicado: 15/12/2025 14:52:00

Casa en Venta Condominio Los Quillayes Nueva , Oportunidad ¡¡¡

Condominio Los Quillayes NUEVA , OPORTUNIDAD ¡¡¡
  • 5 dorms.
  • 4 baños
  • 197 m2
  • 486 m2

UF 13.990

Simular crédito

Detalles de la Propiedad

Codigo:
108434
Tipo Propiedad:
Casa
Contribuciones:
S/I
Gastos Comunes:
$170.000
Superficie Útil:
197 m2
Superficie Total:
486 m2
Dorms:
5 dorms.
Baños:
4 baños
Ultimos 30 dias: 920 visualizaciones
Desde que está publicada: 471 visualizaciones

Descripción

CASA MEDITERRANEA EN CONDOMINIO.

Excelente Oportunidad

Nueva , casa estilo mediterraneo , entrega inmediata.

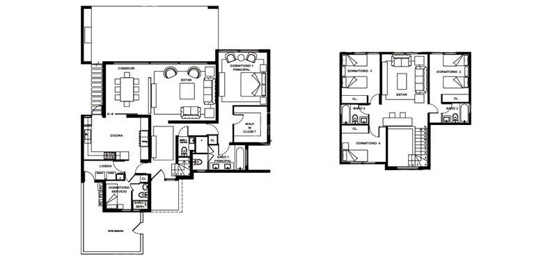
Casa 197,54 m² útiles - Hall de entrada con doble altura - Amplia cocina con cubiertas de cuarzo - Comedor con puerta corredera que permite integrar cocina - Dormitorio principal en suite con amplio walk in closet - Amplio segundo piso con Sala de Estar, 3 dormitorios y 2 baños, considera 1 dormitorio en suite.

Distribucion.

Primer Piso:
Hall de entrada doble altura , baño de visitas, cocina amplia patio de servicio, dormitorio de servicio y baño. Amplio comedor y living , ambos separados. Suite principal con amplio walk in closet y sala de baños amplia.


Segundo Piso:
Amplia sala de estar , 3 dormitorios de excelente tamaño ( uno de ellos en suite) 2 baños completos.

Incluye:
Jardin Formado con riego automatico
Terraza.





Accesibilidad

  • Ubicación
    Review rating Review rating Review rating Review rating Review rating
  • Seguridad
    Review rating Review rating Review rating Review rating Review rating
  • Cerca de colegios
    Review rating Review rating Review rating Review rating Review rating
  • Bajo costo
    Review rating Review rating Review rating Review rating Review rating
  • Densidad
    Review rating Review rating Review rating Review rating Review rating
  • Plusvalía
    Review rating Review rating Review rating Review rating Review rating
Image Description Imagen de referencia floorplanner.com
Sale activity

Average estimated value for a flat in HG2:

£271,401

£7,710 (-2.762%) Over the last 12 months
In the last 12 months
Average sale price

£267,606

Properties sold

51

Listado de Corredores

Image Description

O'Brian Cox

+1 416 346 8780 Contact agent
KP

Contacto

Image Description

Solicitar más Información.

Por favor ingrese su nombre completo.
Por favor ingrese un Rut válido.
Por favor ingrese un email válido.
Por favor ingrese un número válido.

Simulador de Crédito Hipotecario

  dividendo mensual. En colaboración con:
UF
UF
%
  • Dividendo Mensual
     
  • % Pie
    $1,526 /mes
  • Ingreso Mínimo
    n/a

* Estos resultados no son proporcionados por L&B Propiedades y son solo indicativos basados en un producto de hipoteca de repago. Los reembolsos estarán sujetos al producto proporcionado y sus circunstancias.

Confíanos tu propiedad
Por favor ingrese su nombre completo.
Por favor ingrese un Rut válido.
Por favor ingrese un número válido.
Por favor ingrese un email válido.
Por favor escoja un tipo de propiedad.
Por favor escoja un tipo de transacción.
Por favor escoja una comuna.